FORMDECK architektur . design

  • Interior Design
  • Corporate Design
  • Möbeldesign
  • Raumakustik/Akustikbau
  • Innenarchitektur
  • Architektur

FORMDECK bestimmt Emotionen. Oft können wir gar nicht klar beschreiben, warum wir immer am selben groben Tisch in unserem Lieblingscafésitzen oder immer am selben Schaufenster entlangflanieren, um sehnsüchtig hineinzublicken. FORMDECK ist ein Büro für Design und Architektur. Wir erarbeiten Gestaltungskonzepte in zwei- und dreidimensionaler Form, die Emotionen wecken und lenken so den Empfindungsaustausch zwischen Mensch, Raum und Objekt.

Kontaktperson

Simeon Zimmermann

Eva Constanze Dahlke

Kontakt

Hüttemannstraße 60

44137 Dortmund

BIRKENVÖGEL IM KRANKENHAUS

Von der Grafik zur Rauminstallation Für die Magistrale eines Krankenhauses in Nordrhein-Westfalen entwarfen wir eine Rauminstallation mit innenarchitektonischem Konzept. Ziel war es, ein räumliches Highlight im Klinikalltag durch Attraktivität & Gemütlichkeit zu entwerfen. Eine Grafik von Birken an den raumbestimmenden Wandflächen löst sich auf und wird zu einzelnen Vögeln. Die Metamorphose in die Dreidimensionalität wird maximiert durch einen Schwarm roter Vögel. Birkengrafiken an ausgewählten Glasfronten und Paravents führen die Motivfamilie sinnvoll weiter.

THE GREENCAP

Neuen Wohn- und Lebensraum in Städten entdecken und erschliessen wird immer wichtiger. Viele Dachräume sind ungenutzt oder dienen lediglich als Trockenboden. In der stetig wachsenden Gesellschaft ermöglicht eine Umnutzung dieser Dachräume die Erschließung neuen Lebensraums. Dieses zukunftsorientierte Projekt zeigt, wie man Räume sinnvoll nutzen kann und dem sozialen Miteinander mehr Bedeutung beimessen kann. Die Greencaps können in unterschiedlichen Raumformen je nach zur Verfügung stehender Fläche angeordnet und zum Einsatz kommen. Freistehend, ineinandergeschoben, in den Deckenboden vertieft oder gestapelt ergeben sie eine vielseitige Raumplanung. Durch die Kombination verschiedener Kuben entstehen Wohnlandschaften, Arbeitswelten und neuer Lebensraum.

EMPFANGSKULTUR

Die Umwidmung einer alten Zechenhalle in ein modernes Schulungsgebäude für das Hertener EDV-Unternehmen erforderte eine Neugestaltung des Empfangs. Image und Identifikation sollten übermittelt werden. Die Lösung lag in der Kombination aus Gestaltungszitaten der Industriekultur sowie in der Einbindung des Logos in eine dreidimensionale, aus der Netzwerktechnik entliehene, Grafik.

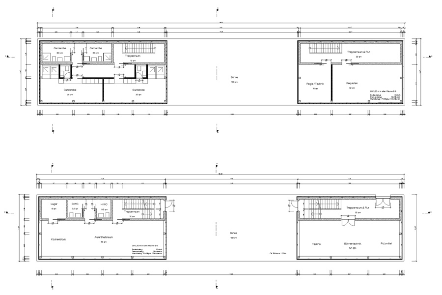
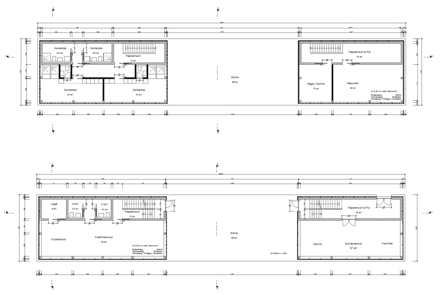
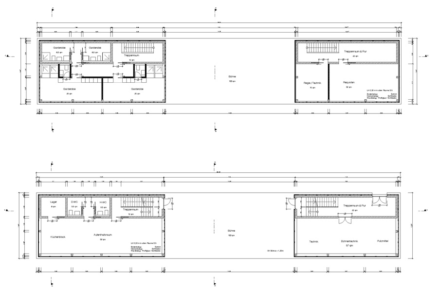
SEEBÜHNE AM PHOENIX-SEE

Am Phoenix-See Dortmund fügt sich durch ihre Form harmonisch in die Gegebenheiten der bereits bestehenden Kulturinsel ein. Ein einfacher Riegel, der im Bereich der Bühne geöffnet ist, bietet weiterhin den Blick auf den dahinter liegenden See. Die Fassade der Kuben ist aus transluzenten U-Profilglaselementen und mit einem Mischgewebe verkleidet, sodass die Bühne je nach Veranstaltung unterschiedlich beleuchtet oder bespielt werden kann.

THE UPPARK

„Lass uns einen Spaziergang über der Stadt machen!“ So oder ähnlichen könnten sich in Zukunft Großstädter in ihrer Freizeit verabreden, um die urbane Naturlandschaft zu genießen. Ein Park über der Stadt ist eine städtebauliche Vision, die viele Aspekte des urbanen Grüns vereint. Mit dem Dachpark entsteht ein erweiteter, städtischer, halböffentlicher Lebensraum, der eine Oase für Großstädter bietet. So können diese die Vorteile einer Stadt nutzen ohne Verzicht auf die Lebensqualität, die die Natur und das Landleben bereiten. Der Dachpark ist ein modulares System, das auf ungenutzte Dachflächen aufgesetzt wird und sich in Verlauf, Topographie und Farbigkeit der vorhandenen Gebäude anpasst. So wirkt er als Teil der Stadt, integriert sich in ihr Bild und wird nicht als erdrückend oder störend empfunden.